装修案例
案例信息
小区名称:
三环新城
房屋面积:
60㎡
房屋户型:
两居室
装修风格:
北欧风格
装修造价:
¥ 51100
设计师:
李子懿
案例简介
本套案例位于北京三环新城,建筑面积为70平米。这套户型为两室一厨一卫一厅,风格定位为北欧风格,整个区域空间相对于方正规范,在选材及配色上,使用大量的浅色自然元素并适度的留白,把重点留给沟缝与阴影的明暗对话,呈现舒适又轻盈的场域;让下了班,离开繁忙的地平面后,就像拥抱着云朵,漂浮在天空,优游自在。

客厅

客厅

用木地板上墙当做电视背景墙,使整个空间层次丰富,温馨自然,当阳光照耀在木饰面的时候,自然,放松,休闲的氛围

客厅

客厅

很快被阳光营造出来,坐落在大面积窗的休闲椅,承载着未来家人和宝宝相互依偎的使命

儿童房

儿童房

儿童房为了更加有活动性,靠近窗户采用榻榻米,房间大面积的空间也充分留空,留给与小宝宝一起玩耍的空间,清爽自然的木地板和炫彩的背景墙为整个空间增色添彩,活泼明朗。

卧室

卧室

绿色的背景是空间色彩丰富有质感,功能丰富的柜子组合,阳台的多用性和光感,主卧更多的满足休息,和实用的用处,但设计手法保留所有木制作的轻薄感,让空间感觉更加轻盈。

卫生间

卫生间

洗手台的镜柜木饰面用了整体空间统一木饰面细腻、自然,上下墙砖的分色和腰线的设计使空间看起来更有层次感。

餐厅

餐厅

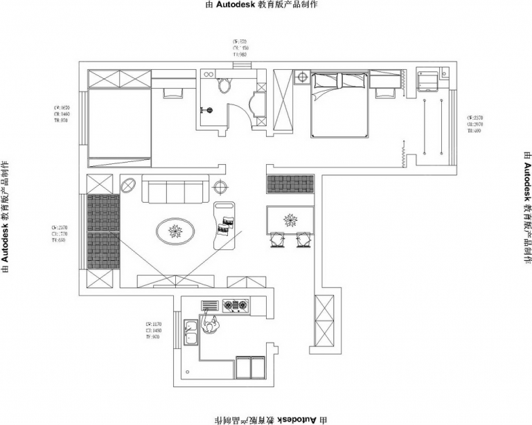
平面图

平面图

Copyright © 2026 龙发装饰 版权所有

京ICP备13015127号-1

×
免费获取装修报价